産品列表PRODUCTS LIST
結構緊湊、操作維修簡單、安裝檢修方便、使用壽命長;
葉輪具有Z佳的水力設計結構,工作效率高,後掠式葉片具🧑🏽🎄有自潔功能,可防雜物纏繞、堵塞;
與曝氣系統混合使用可使能耗大幅度降低,充氧量💘明👾顯🙆🏿提高,有效防止沉澱;
電機繞組絕緣等級F級,防護等級爲IP68,選用優質軸承,使💔電機的工作更安全;QJB15/12大功率潛水攪拌機不鏽鋼
|
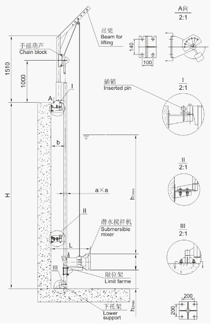
一、QJB型潛水攪拌機簡介:QJB15/12大功率潛水攪拌機不鏽鋼
QJB型潛水攪拌機混合型适用于污水處理廠的工藝流程中推進攪拌含有懸浮物的污水、稀泥漿、工業過程液體😈等,創建水流,加強攪拌功能,防止污泥沉澱及産生死角,是市政和工業污水處理工藝流程上的重要設備,在水處理工藝🧑🏻❤️🧑🏼流程中,可實現生化過程中固液二相和固液氣三相的均質,流動的工😥藝要求。QJB型潛😁水攪拌機由潛水電機、葉槳和安裝系👩🏼❤️👨🏾統等組成🔞。根據傳動方式💫的不同,潛水攪拌機可分爲:混合攪拌和低速推流兩大系列。 混合攪拌系列産品常選用多級電機,采用直聯式結構,它與傳統相比,具有結構緊湊、能耗低、效率高、便于維便于維😘護保養等優點。葉輪制造🙂↕️精㊙️度高、推力大。QJB型潛水攪⛹🏻♂️拌機系列産品适用于需要固液攪拌、混合的場合。
QJB15/12大功率潛水攪拌機不鏽鋼
三、QJB型潛水攪拌機的工作原理:
|
|
2、QJB型潛水攪拌機葉輪具有佳的水力設計結構,工作效率👩🏽🐰👩🏿高,後⛹🏻♀️掠式葉片具有自潔功能可防雜物纏繞、堵塞。 3、QJB型潛水攪拌機與曝氣系統混合使用可使能耗大👿幅度降低,充氧量明顯提高,有效防止沉澱。 4、QJB型潛水攪拌機電機繞組絕緣等級爲F級,防護等級爲💫IP68,選用軸承和的電機防凝露裝置,使電機的工作更加⛹🏻♂️安全可靠。 5、QJB型潛水攪拌機有兩道機械密封,材質爲碳化鎢-碳化鎢,所有外露緊固件均爲不鏽鋼。 6、根據工藝要求,直聯式QJB型潛水攪拌機可配用導流罩。 7、QJB型潛水攪拌機的不鏽鋼、碳鋼精鑄焊接葉槳,經優化設計葉片呈後掠式,效率高,具有自潔功能。
8、QJB型潛水攪拌機内部設有洩漏傳感器和定子繞組超溫保護報警裝置。
1、污水(廢水)/活性污泥的混合 2、控制濃縮污泥分離 3、酸、堿中和及PH值調整工藝 4、防止顆粒在池壁和池底的凝結和沉澱
5、提高傳熱系統的效率
2、介質的PH值在5-9 3、介質密度不超過115KG/M^3
|
|
|
|
注:是否配導流罩,由水處理工藝決定。在上表混合攪👯🏾♂️拌系列中,“重量”一列所标的兩個數字分别表示👿不帶導流罩和帶導流罩的重量;以上規格型号爲常規産,但不局限于上表,可爲客戶拓展設計新的或含特殊要求的攪拌機。 |
|
爲保證潛水攪拌機取得佳效果,請使用方提供如👌下資料: 1、運用目的 2、池型 3、池尺寸 4、介質特性包括粘度、密度、固體物含量等。 潛水攪拌機所需要的配套功率是按容積大小,攪拌液體的密⛹🏻♀️度、粘度和攪拌深度而确定的,根據具體情況應采用一台或多台攪拌機。
注:
2、潛水攪拌機必須*潛入水中工作,不能在易燃易爆的😘環境下👋或有強腐蝕性液體的環境中工作,小潛👨🏻🏭入深度900mm。
|
|
|
|
十一、QJB型潛水攪拌機的流場圖:
|
|
7、安裝系統材質采用不鏽鋼和碳鋼防腐可供選擇; |
|
|
|
十三、QJB型潛水攪拌機運行實況:
|