溫度監測——電機繞組采用ZZ安全的過熱保護工藝,一旦由👱🏼♂️于😁電☠️機👩🍼過載,介質溫度過高或其他原因造
成過熱,溫度傳感器會在溫度超過許用溫度極限以前及時發出報警信号或自動關閉水泵
|
一、QJB-W型潛水污泥回流泵簡介:
|
|
|
|
|
2、按抗堵塞、抗纏繞專門設計,使用可靠; 3、采用新的密封材料,可以使泵安全連續運行10000小時以上; 4、結構緊湊,安裝、維修方便; 5、主機采用澆鑄成型結構,體積小、精度高、耐腐蝕、無噪音👩🍼。 |
|
|
|
|
|
|
|
|
|
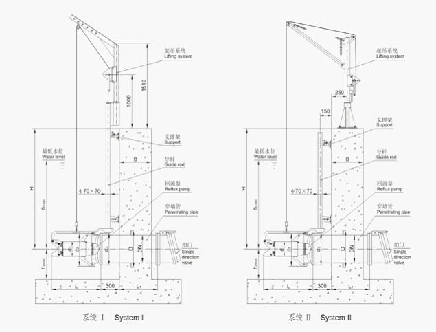
2、本設備除穿牆管需預埋外,導杆、起吊杆均用膨脹螺栓與池🔞體連接,不需預埋件。 3、預埋件和拍門由用戶自行采購安裝,回流泵有水平😘安裝和垂直安裝兩種方式供用戶選擇。 |
|
|