産品列表PRODUCTS LIST
2、有過載保護裝置,運行可靠。
3、通過運行軌迹變化完成卸渣,效果好。
4、Z小間隙1mm,是典型的細格栅。
5、齒耙強度高,有尼龍與不鏽鋼兩種材質供選擇。回⛹🏻♂️轉機械格栅😵💫制造廠家
6、整機供貨。
·機械格栅技術參數
注:1、表中過水流量均在:栅前水位h=1m/s的前提下。回轉機械格栅制造廠家
2、上表功率均在耙齒移動速度V=2m/min情況下。回轉機械格栅制造廠家
·型号表示方式
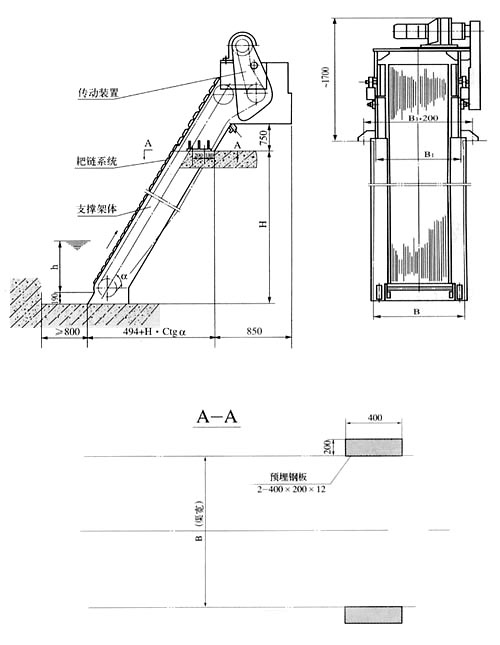
·外形及尺寸
·訂貨說明
1、注明井深H及齒隙b。
2、安裝角度60°—80°,推薦75°,如需其它安裝角應特殊訂貨。回轉機械🧛🏾♀️格💑🏾栅👌制造廠家
3、存放、輸送或壓榨垃圾的配套設備可另訂。
4、介質溫度≤ 60℃ ,特殊水質應注明。
5、當B>1500時,應考慮兩組鏈條由一個傳動裝置拖動。機械格栅清污機
·特點
1、無栅條,諸多小齒耙相互連接組成一個碩大的旋轉面,撈渣*。
2、有過載保護裝置,運行可靠。
3、通過運行軌迹變化完成卸渣,效果好。
4、小間隙1mm,是典型的細格栅。
5、齒耙強度高,有尼龍與不鏽鋼兩種材質供選擇。
6、整機供貨。