潛水推流器玻璃鋼葉輪-南京蘭江泵業有限公司


    

<bdo id="8s2zy1f_28k8_ddc5i6"></bdo>


    
  • 産品列表PRODUCTS LIST

    潛水推流器玻璃鋼葉輪

    簡要描述:

    潛水推流器玻璃鋼葉輪,QDT型低速推流器,南京潛水推流器生産基地,QDT低速推流器,在水處理工藝流程中,廣泛應用于氧化溝推流,各類生化池的攪拌,同時也可用于河流防凍,景觀水循環等。低速推流器由潛水電機、減速裝置、葉輪和安裝系統等組成

    分享到: 1
    在線留言
    潛水推流器玻璃鋼葉輪

    一、 潛水推流器玻璃鋼葉輪,南京潛水推流器生産基地,QDT型低速推流器概述  
    QDT低速推流器,在水處理工藝流程中,廣泛應用于氧化溝推流,各類生化池的攪拌,同時也可用于河流防凍,景觀水循環等。低速推流器由潛水電機、減速裝置、葉輪和安裝系統等組成。其特點是配套功率小(1.5~7.5Kw),轉速低(36~135r/min),葉槳直徑大(1000~2500mm),低速旋轉,産生大體積流場,服務範圍廣。後掠式香蕉型葉槳設計,具有自潔功能,采用聚氨酯或鋁合金材質精鑄成型,具有重量輕,強度高,耐腐蝕等優點,其優異的摩擦性能,可保證在低轉速的運動狀态下于液體産生良好的阻尼效果,從而創建出柔和的水流。該系列産品除了具有推流和創建水流的作用外還具攪拌功能
    二、 南京潛水推流器生産基地,QDT型低速推流器應用範圍:  
    潛水攪拌機主要運用在市政和工業污水處理過程中的混合、攪拌和環流,也可用作景觀水環境的養護設備,通過攪拌達到創建水流作用,改善水體質量,增加水中含氧量,有效阻止懸浮物沉積。
    三、 潛水推流器玻璃鋼葉輪,QDT型低速推流器型号參數

    型号: QDT型

    口徑: 10-100mm

    壓力: 30m

    材質:鑄鐵,不鏽鋼304.316.304L.316L


    四、 ,南京潛水推流器生産基地,QDT型低速推流器使用條件

    攪拌機在下列條件下應能正常連續運行:

    1.高介質溫度不超過40℃;

    2.介質的PH值在5~9之間;

    3.液體密度不超過1150kg/m3;

    4.長期潛水運行,潛水深度一般不超過10m。

    五、性能參數:

    潛水攪拌機在額定電壓爲380伏,頻率爲50Hz的性能參數如下表:

    QDT低速推流器性能參數

     

    注:
    1、上表混合攪拌系列中,“重量”一列所标的數值爲含導流罩的重量;

    2、電機繞組絕緣等級:F級,防護等級:IP68,電機工作制式:24小時連續工作。

    六、選型參考:

    潛水攪拌機的選型是一項比較複雜的工作,選型方案的正确與否直接影響到設備的正常使用,作爲選型的原則就是要讓攪拌機在适合的容積裏發揮充分的攪拌功能,這個标準一般可用流速來确定。根據污水處理廠的不同工藝要求,攪拌機選型的流速應保證在0.15~0.3m/s之間,如果低于0.15m/s的流速則達不到推流攪拌的效果,如果超過0.3m/s的流速則會影響工藝效果且造成浪費。所以在選型前,首先要确定潛水攪拌機運用在什麽場所,如:污水池、污泥池還是生化池;其次是介質參數,如:懸浮物含量、溫度、PH值等;還有水池的形狀,水深甚至安裝方式等都将對選型産生影響,同時還應考慮到節能因素,因爲這将會影響到用戶今後的運行成本。可參考下面的潛水攪拌機流場圖。

    爲了滿足在不同環境下都能達到的攪拌功能,我們爲用戶提供了多種型号的潛水攪拌機,同時可提供選型服務。



    七、QDT型低速推流器流場圖:

    QDT低速推流器流場圖

     

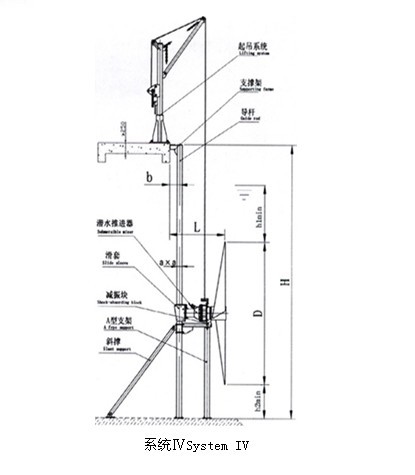
    八、QDT型低速推流器安裝方式及尺寸:

    潛水攪拌機可以有多種安裝方式,這裏提供四種通用的方式供選擇,尺寸可參考下表。我公司還可以根據用戶的要求作特殊設計。

    注:

    1、潛水攪拌機的安裝系統,可在無需排出池中污水的情況下,快速安裝和拆卸潛水攪拌機;
    2、安裝系統I-1隻适用于池深<4m,機型爲QJBO.85/8和QJBl.5/6,且可在水平方向和垂直方向調節角度;當池深>4m時,應選用安裝系統I-2型。
    3、安裝系統II、III導杆可沿水平方向繞導杆軸線旋轉,大轉角爲±60°;
    4、當H>4m時需,在導杆中間添加一支撐架;
    5、支撐架和下托架與池壁、池底均用膨脹螺栓或化學錨栓固定,無需預留孔;
    6、客戶定貨時,請提供池深H及池型圖,以便确定導杆尺寸和支撐架個數;
    7、安裝系統材質采用不鏽鋼和碳鋼防腐可供選擇;
    8、多台攪拌機可共用一套起吊系統。

    QDT型低速推流器運行模式:

    潛水攪拌機的安裝定位對其攪拌效果有很大的影響,爲了達到事半功的運行效果,我們建議用戶按照專業設計人員的要求去做,要充分考慮到水池的形狀,進出水的位置以及攪拌機的水流反射到構築物向引起的渦流等情況,盡量減少短路循環和死角的産生,避免與池壁的撞擊而降低流速。參照下面的運行模式圖,可幫助您合理選擇攪拌機和安裝形式。

    QDT型低速推流器混合、攪拌系列:

    QDT型低速推流器系列

    聯系人
    在線客服
    掃碼關注我們
    用心服務 成就你我

    
        

    <bdo id="8s2zy1f_28k8_ddc5i6"></bdo>